 
                    Marinetec Shipyard
Shau Kei Wan, HK
Tel:+852 2325 3355
 
                2024 Azimut Magellano 30M
 Viareggio, Lucca
                        Viareggio, Lucca                    Equipments:
MAN engine upgrade to 2 x 1900 hp
Upgraded customised interior
Speed stabilizers (Fins)
Double Racor filters for generators
Tender installation (Tender Not Included)
Upgraded generators x 2 to Kohler 55kW/50Hz - included in LED coutesy lights package
Upgraded courtesy lighting package
Upgraded navigation package Simrad/Navico - Gold Version
Video camera package with fixed camera in aft cockpit & moving camera in
engine room, plus pre-disposition for 8 additional cameras
Option to control video cameras on the Ipad (up to four cameras)
AIS (class b) Vessel ID & location safety system
ACR RCL-100 Searchlight
Additional sound insulation between engine room and saloon
Rubrail in rubber and steel around the swim platform and platform side cigars
Rubrail on the sides
Pop up lights on the bow area (3)
Sun cover with removeable Carbon fibre poles for bow seating area
Spot lights on the aft of the flybridge (recessed in the fibreglass - 6 x Flexa LED spotlights)
Underwater lights - 4 on stern area and 2 on each side (Aqualuma)
Cockpit electric shade
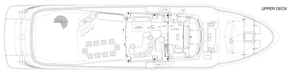
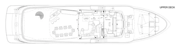
Teak floor on Upper Deck
Sun cover with removeable Carbon fibre poles for Upper Deck
Handrails with glass inserts on aft Upper Deck
Additional cleats with fairlead at midships
LED courtesy lights luxury package
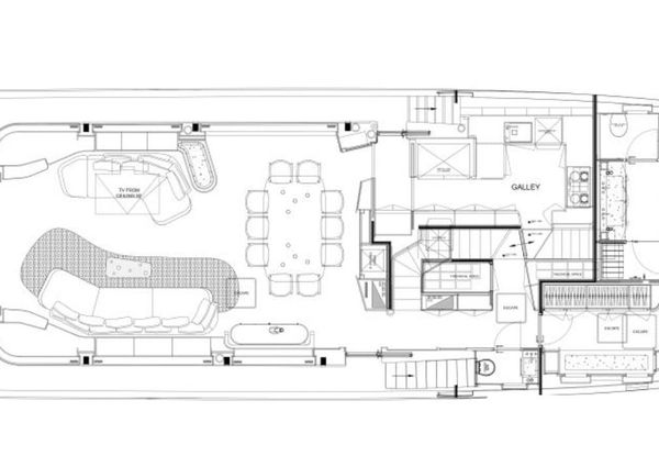
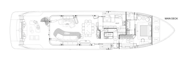
Ice maker in galley
Galley - Custom tall cabinet in pantry with additional Miele fridge and winecooler
Galley - Add induction Wok hob with enhanced extractor & custom cabinetry to suit
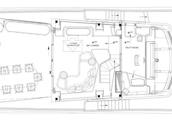
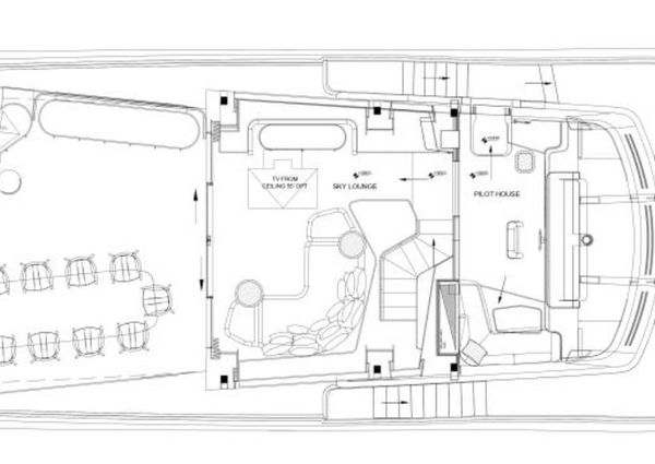
Sky Lounge - High-Low TV system with TV & custom cabinetry to suit
Hydraulic Stern Thruster 35Kw/47Hp
Custom Bow Layout with forward facing sofa & large sunbed
Audio Video for Upper Deck saloon (including HK spec TVs for Saloon, Upper Deck & Master Cabin)
Aft Cockpit with 2 x chairs in lieu of sofa on Stbd side
Aft Cockpit Upper Deck Dining Table with Teak top in lieu of the standard
Saloon dining table with Fior di Pesco marble in lieu of standard glass
Saloon Starboard side cabinet top in Emperador marble in lieu of standard leather
Replace standard Port side sofa with 2 armchair as per décor presentation
Upper Deck Saloon sofa upgrade Linea leather "^#@ Verdone" in lieu of standard
Master Cabin TV wall with lower and upper part in leather "Studio art city polvere"
Upgrade standard exterior dining chairs
Custom chair for vanity table in Master Cabin
Specifications
Engine 1 Specifications
Engine 2 Specifications
Media Gallery
|  |  |  | 
|  |  |  | 
|  |  |  | 
|  |  |  | 
|  |  |  | 
|  |  |  | 
Exuding a sense of precious freedom, the Magellano 30M crossover emancipates a longing for authentic exploration. Constructed to excel in navigation to fascinating far-off destinations, she ignites the spark of curiosity and encourages spontaneous travel aspirations. The art-inspired ambience breathes elegance and abundance, with maximized spaces and luminosity further summoning the tantalizing feeling of onboard liberty.
The Company offers the details of this vessel in good faith but cannot guarantee or warrant the accuracy of this information nor warrant the condition of the vessel. A buyer should instruct his agents, or his surveyors, to investigate such details as the buyer desires validated. This vessel is offered subject to prior sale, price change, or withdrawal without notice.